物件番号「10509」をお伝えください。
| 価格 | 3,299万円 |
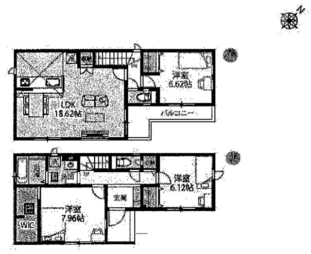
| 間取 | 3LDK |
| 間取詳細 | |
| 所在地 | 埼玉県上尾市上町2丁目 |
| 学区 | 上尾中央小学校 480m/上尾中学校 2,160m |
| 交通 | JR高崎線・湘南新宿ライン・上野東京ライン 上尾駅 徒歩12分 |
| 種目 | 新築戸建 |
| 土地面積 | 86.28m² |
| 建物面積 | 96.21m² |
| 建ぺい率 | 60% |
| 容積率 | 160% |
| 建物構造 | 木造 |
| 地目 | 宅地 |
| 土地権利 | 所有権 |
| 借地料 | - |
| 用途地域 | 第二種住居地域 |
| 取引態様 | 一般媒介 |
| 西暦築年月 | |
| 築年月 | |
| 引渡時期 | 即時 |
| 諸費用(全て) | |
| 接道(全て) | 北東 4m(幅員) 公道 |
| セットバック | |
| 特色 | 手すり付階段、防犯断熱玄関ドア、都市ガス、浴室換気乾燥機、LED照明(玄関廊下キッチントイレ洗面所)、シャンプードレッサー付洗面化粧台、小学校10分以内、バリアフリー、全居室クロゼット付、24時間換気、エコジョーズ、1F2Fウォシュレット、全居室ペアガラス、人工大理石カウンターシステムキッチン、床下収納、低ホルモアルデヒド、玄関収納下駄箱、1Fシャッター、外壁サイディング、本下水、カウンター対面キッチン、ユニットバス、公営水道、テレビモニター付インターフォン、東京電力、電子カードキー、フローリング、浄水器一体型シャワー水栓、整形地、べた基礎 |
| 情報更新日 | 2025年12月16日 |
| 次回更新予定日 | 2025年12月17日 |
物件番号「10509」をお伝えください。